Barcelona. El Maresme. Teià 08329
Berhouse os presenta en exclusiva esta espectacular vivienda con jardín y piscina privada.
La vivienda tiene una orientación solar excelente, en el jardín encontramos 2 zonas bien diferenciadas, una de ellas es la zona de baño y piscina y en la parte trasera de la vivienda tenemos la zona de la barbacoa con una magnifica pérgola donde poder disfrutar de reuniones con amigos y familiares.
Ambas partes del jardín se caracterizan por su gran privacidad.
La casa esta dividida en 3 plantas que detallamos:
En la planta principal encontramos un gran salón comedor, una amplia cocina, 2 habitaciones y un cuarto de baño.
En la planta superior tenemos 3 habitaciones dobles, (1 de ellas tipo suite ), 2 baños y un estudio caracterizado por sus altos techos.
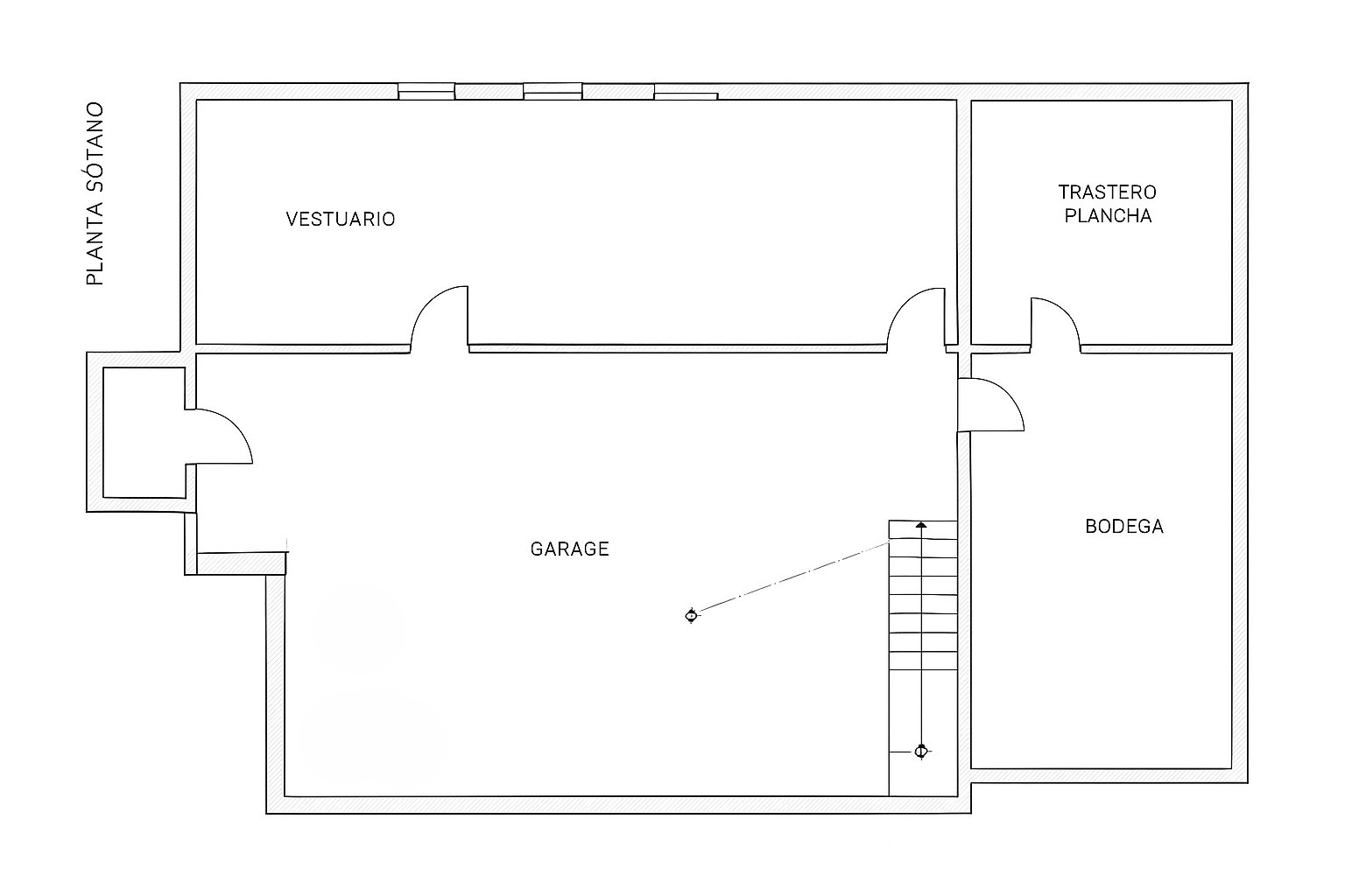
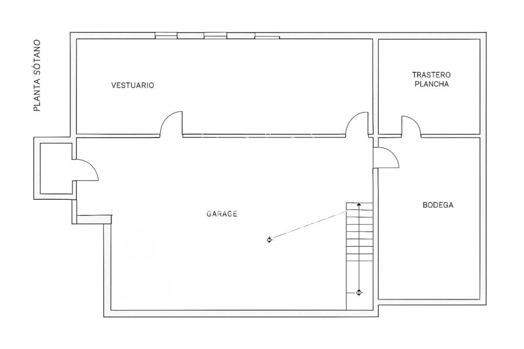
En la planta sótano tenemos el cuarto de lavado, un gimnasio o sala polivalente , una bodega y el garaje con capacidad para 3 coches.
Si os gustaría vivir cerca de la ciudad pero en un entorno relajante y rodeado de naturaleza, con vistas al mar, no dudéis en venir a visitarla.




































































































